project summary
Permanent Offices
category
location
Southwestern U.S.A.
Sunbelt facility
Indicom Buildings A Sunbelt Company
size
3,360 sq. ft.
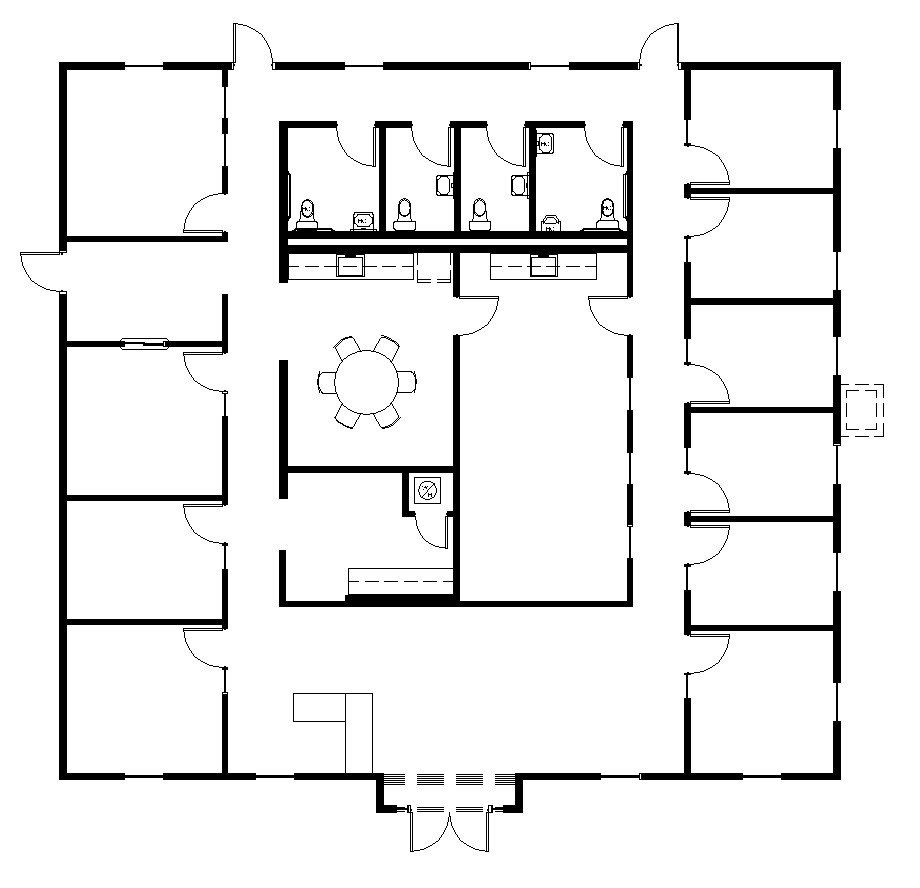
Building Floor Plan Highlights

case study summary
Indicom Buildings partnered with Pacific Mobile to deliver a new branch office in San Marcos, Texas—marking Pacific Mobile’s very first location in the state. The 3,360-square- foot facility was designed to provide multi- office space and is attached to Pacific Mobile’s service building, ensuring seamless operations between administration and service support.
The new branch expands Pacific Mobile’s footprint into Texas, strengthening their ability to serve regional clients with responsive, localized service. Modular construction offered the speed, cost-efficiency, and flexibility needed to deliver this first-of-its-kind branch for the company.
Building Floor Plan Highlights

case study summary
Indicom Buildings partnered with Pacific Mobile to deliver a new branch office in San Marcos, Texas—marking Pacific Mobile’s very first location in the state. The 3,360-square- foot facility was designed to provide multi- office space and is attached to Pacific Mobile’s service building, ensuring seamless operations between administration and service support.
The new branch expands Pacific Mobile’s footprint into Texas, strengthening their ability to serve regional clients with responsive, localized service. Modular construction offered the speed, cost-efficiency, and flexibility needed to deliver this first-of-its-kind branch for the company.










