project summary
Modular Temporary Office Space
category
location
Northeastern U.S.A.
Sunbelt facility
Whitley Manufacturing A Sunbelt Company
size
9,600 sq. ft.
key achievements
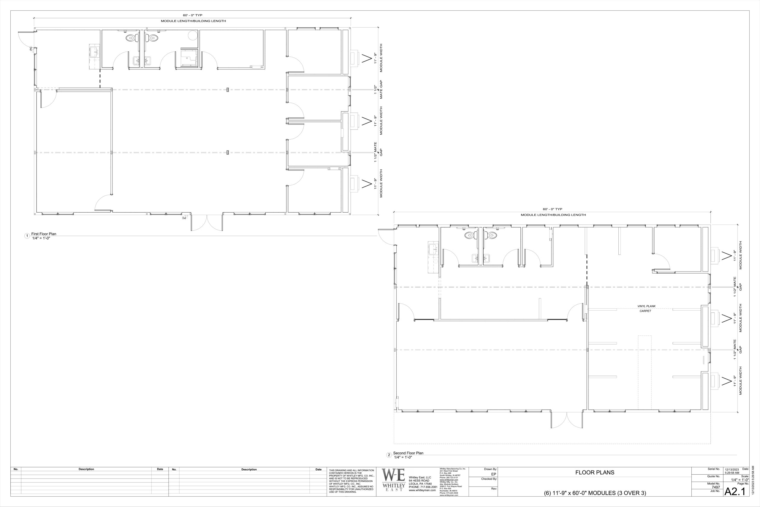
Building Floor Plan Highlights

case study summary
Whitley Manufacturing showcased its expertise in modular construction by successfully delivering a temporary two-story construction office in an urban area during the development of a high-rise office in downtown Boston, MA. Recognizing the need for a versatile and efficient workspace on-site, Whitley’s modular construction approach allowed for rapid assembly and customization. The two-story structure provided a functional and comfortable environment for project management and coordination, enhancing the overall efficiency of the construction process.
This innovative construction office, crafted with precision using modular techniques, featured a well-thought-out layout that catered to the customer’s diverse needs. The two-story structure comprised a cafeteria space, open office areas, multiple meeting rooms, and private offices. This strategic arrangement not only provided a comfortable and functional workspace but also ensured a dynamic environment conducive to effective collaboration and project management. Whitley’s commitment to delivering modular solutions that seamlessly integrate essential elements of a professional office setting underscored its ability to meet the specific requirements of the customer’s construction project.
A two-story modular temporary office facility designed to provide a fully functional project management hub during high-rise construction, enabling efficient coordination, collaboration, and on-site decision-making while maintaining the flexibility required for evolving jobsite conditions
key achievements
Building Floor Plan Highlights

case study summary
Whitley Manufacturing showcased its expertise in modular construction by successfully delivering a temporary two-story construction office in an urban area during the development of a high-rise office in downtown Boston, MA. Recognizing the need for a versatile and efficient workspace on-site, Whitley’s modular construction approach allowed for rapid assembly and customization. The two-story structure provided a functional and comfortable environment for project management and coordination, enhancing the overall efficiency of the construction process.
This innovative construction office, crafted with precision using modular techniques, featured a well-thought-out layout that catered to the customer’s diverse needs. The two-story structure comprised a cafeteria space, open office areas, multiple meeting rooms, and private offices. This strategic arrangement not only provided a comfortable and functional workspace but also ensured a dynamic environment conducive to effective collaboration and project management. Whitley’s commitment to delivering modular solutions that seamlessly integrate essential elements of a professional office setting underscored its ability to meet the specific requirements of the customer’s construction project.
A two-story modular temporary office facility designed to provide a fully functional project management hub during high-rise construction, enabling efficient coordination, collaboration, and on-site decision-making while maintaining the flexibility required for evolving jobsite conditions









