project summary
Corrections
category
location
Northeastern U.S.A.
Sunbelt facility
ProMod Manufacturing A Sunbelt Company
size
2,800 sq. ft.
key achievements
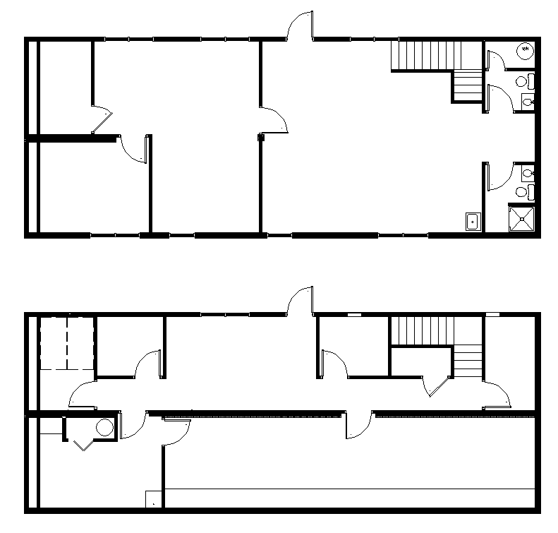
Building Floor Plan Highlights

case study summary
ProMod Manufacturing partnered with a Sunbelt Modular dealer to deliver a 2,800 sq. ft., two-story modular facility for the a Police Department’s Critical Response Command K9 Unit. Purpose-built to support advanced electronic detection and high-priority investigations, the facility provides specialized space for one of the nation’s most innovative law enforcement teams.
The K9 Unit plays a vital role in detecting electronic devices—including those used to store criminal evidence— ensuring no digital clue is overlooked in counterterrorism and cyber-crime investigations. The new modular facility was designed to meet this unique mission, providing training, operational, and support space in a secure, efficient environment.
By leveraging modular construction, ProMod delivered a modern, tailored solution that supports the city’s mission to protect from evolving threats.
key achievements
Building Floor Plan Highlights

case study summary
ProMod Manufacturing partnered with a Sunbelt Modular dealer to deliver a 2,800 sq. ft., two-story modular facility for the a Police Department’s Critical Response Command K9 Unit. Purpose-built to support advanced electronic detection and high-priority investigations, the facility provides specialized space for one of the nation’s most innovative law enforcement teams.
The K9 Unit plays a vital role in detecting electronic devices—including those used to store criminal evidence— ensuring no digital clue is overlooked in counterterrorism and cyber-crime investigations. The new modular facility was designed to meet this unique mission, providing training, operational, and support space in a secure, efficient environment.
By leveraging modular construction, ProMod delivered a modern, tailored solution that supports the city’s mission to protect from evolving threats.








