project summary
Government Restroom Facility
category
location
Midwestern U.S.A.
Sunbelt facility
Whitley Manufacturing A Sunbelt Company
size
154 sq. ft.
key achievements
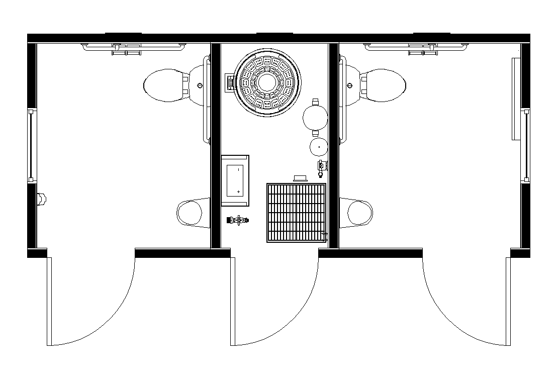
Building Floor Plan Highlights

case study summary
The goal was to create a robust facility capable of withstanding the rigorous climates of the region. This endeavor included the development of individualized restrooms catering to the diverse needs of men, women, and individuals with disabilities. Central to the project’s success was the incorporation of remote alarm systems within each facility, enabling rapid communication with park personnel regarding essential maintenance tasks. Whitley’s unwavering dedication to excellence shone through in the meticulous integration of plumbing, electrical systems, and ADA-compliant features, harmonizing functionality and convenience. This approach not only upheld the company’s standards but also expedited the construction timeline and installation process to achieve optimal efficiency.
It’s noteworthy that the modular restroom ensemble’s complete offsite fabrication presented its own set of challenges, underscoring Whitley’s ability to navigate logistical complexities. Moreover, the innovative design took into account the incorporation of a rain collection system, showcasing a holistic approach to sustainability.
Harnessing Whitley’s extensive 75+ years of expertise in modular construction, the company has forged a robust facility tailored to withstand the demanding climates of the region.
A fully prefabricated modular restroom facility engineered for durability, accessibility, and environmental responsibility. Designed to withstand the region’s demanding climate conditions, this solution combines resilient construction with advanced maintenance monitoring and sustainable design.
key achievements
Building Floor Plan Highlights

case study summary
The goal was to create a robust facility capable of withstanding the rigorous climates of the region. This endeavor included the development of individualized restrooms catering to the diverse needs of men, women, and individuals with disabilities. Central to the project’s success was the incorporation of remote alarm systems within each facility, enabling rapid communication with park personnel regarding essential maintenance tasks. Whitley’s unwavering dedication to excellence shone through in the meticulous integration of plumbing, electrical systems, and ADA-compliant features, harmonizing functionality and convenience. This approach not only upheld the company’s standards but also expedited the construction timeline and installation process to achieve optimal efficiency.
It’s noteworthy that the modular restroom ensemble’s complete offsite fabrication presented its own set of challenges, underscoring Whitley’s ability to navigate logistical complexities. Moreover, the innovative design took into account the incorporation of a rain collection system, showcasing a holistic approach to sustainability.
Harnessing Whitley’s extensive 75+ years of expertise in modular construction, the company has forged a robust facility tailored to withstand the demanding climates of the region.
A fully prefabricated modular restroom facility engineered for durability, accessibility, and environmental responsibility. Designed to withstand the region’s demanding climate conditions, this solution combines resilient construction with advanced maintenance monitoring and sustainable design.








