project summary
Schools
category
location
Southeastern U.S.A.
Sunbelt facility
ProMod Manufacturing A Sunbelt Company
size
10,165 sq. ft.
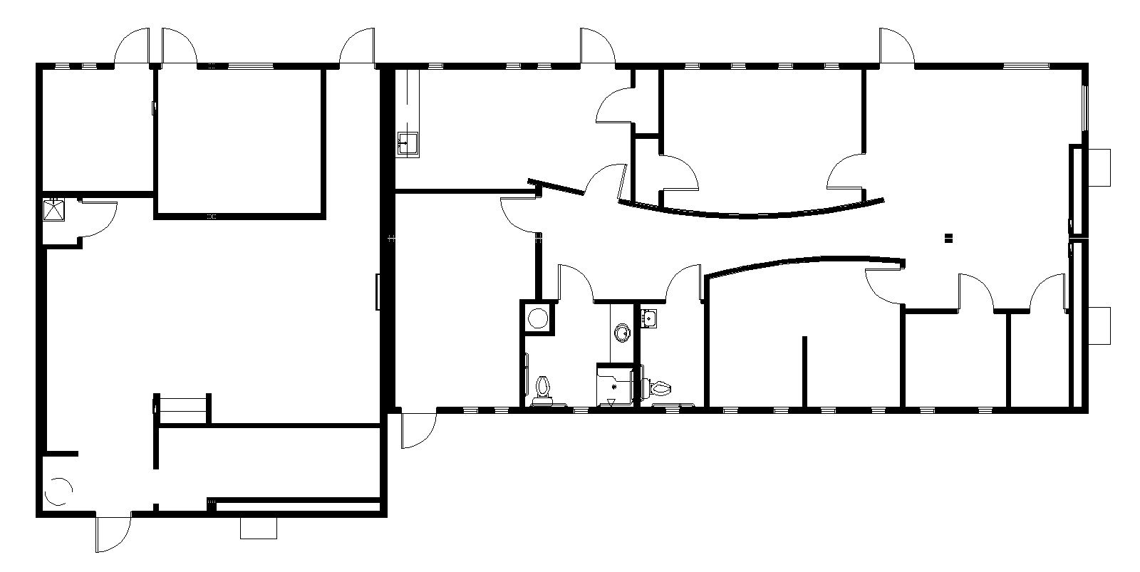
Building Floor Plan Highlights

case study summary
ProMod Manufacturing, in partnership with Affordable Structures, delivered a 10,165 sq. ft. modular educational campus for the East Coast Migrant Head Start Project in Valdosta, GA. The objective was to create a safe, modern environment for early childhood education while meeting urgent program needs.
The campus solution included dedicated toddler and pre-K classrooms, staff offices, and a “nature scape” outdoor playground designed to inspire learning through play. Built with modular efficiency, the facility provides Head Start students and teachers with a durable, child-centered environment delivered faster and more cost-effectively than traditional construction.
Building Floor Plan Highlights

case study summary
ProMod Manufacturing, in partnership with Affordable Structures, delivered a 10,165 sq. ft. modular educational campus for the East Coast Migrant Head Start Project in Valdosta, GA. The objective was to create a safe, modern environment for early childhood education while meeting urgent program needs.
The campus solution included dedicated toddler and pre-K classrooms, staff offices, and a “nature scape” outdoor playground designed to inspire learning through play. Built with modular efficiency, the facility provides Head Start students and teachers with a durable, child-centered environment delivered faster and more cost-effectively than traditional construction.







