project summary
Modular Retail Space
category
location
Southeastern U.S.A.
Sunbelt facility
Whitley Manufacturing A Sunbelt Company
size
600 sq. ft.
key achievements
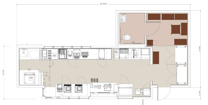
Building Floor Plan Highlights

case study summary
Looking to grow their franchise rapidly while maintaining its brand identity, the iconic beverage retailer looked for methods to build their stores with strict adherence to their vision. It was also important to have no disruptions to the busy shopping center where their store was to be located.
Store design and branding elements were given meticulous attention as materials, fixtures and colors were kept within specs. And to ensure all this came together seamlessly prior to delivery, the entire store with all the finishing details (equipment included) were staged at the Whitley Manufacturing facility. Once everything was approved by the client, the two units were disassembled and prepped for shipping. Before leaving Whitley Manufacturing, the store was approximately 90% complete. The modules arrived on site and were set on a prepped and ready foundation. Once the last few remaining details were finished, the store was ready for business.
A brand-focused modular retail solution designed to accelerate franchise growth without compromising identity or customer experience. Delivered with precision and efficiency, this turnkey store model ensures rapid deployment, minimal site disruption, and seamless operational readiness.
key achievements
Building Floor Plan Highlights

case study summary
Looking to grow their franchise rapidly while maintaining its brand identity, the iconic beverage retailer looked for methods to build their stores with strict adherence to their vision. It was also important to have no disruptions to the busy shopping center where their store was to be located.
Store design and branding elements were given meticulous attention as materials, fixtures and colors were kept within specs. And to ensure all this came together seamlessly prior to delivery, the entire store with all the finishing details (equipment included) were staged at the Whitley Manufacturing facility. Once everything was approved by the client, the two units were disassembled and prepped for shipping. Before leaving Whitley Manufacturing, the store was approximately 90% complete. The modules arrived on site and were set on a prepped and ready foundation. Once the last few remaining details were finished, the store was ready for business.
A brand-focused modular retail solution designed to accelerate franchise growth without compromising identity or customer experience. Delivered with precision and efficiency, this turnkey store model ensures rapid deployment, minimal site disruption, and seamless operational readiness.








